ADUs
The Loring House
Designer/ project manager
position:
company:
is Architecture
client:
private
1-story ADU - 1 Bed, 1 bath 2-car garage 615 sq ft
location:
description:
riverside, ca
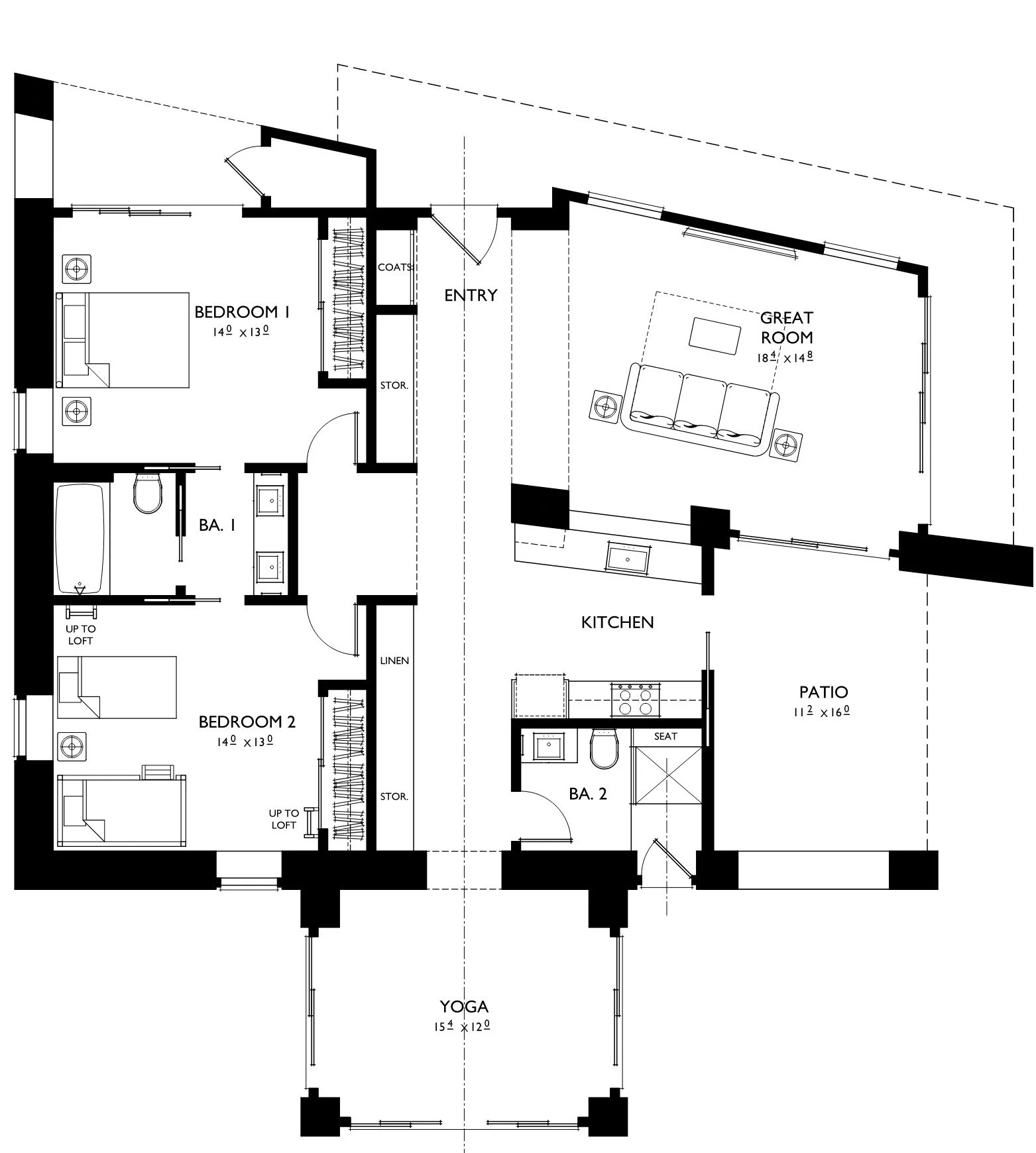
The Tinaja House
company:
position:
project Manager
IS Architecture
client:
private
location:
berrogo springs, ca
description:
1-story guest house, 2 Beds 2 baths
1,735 sq ft
